Maison neuve à
Aytré (17440) Référence : JH2361867_1

Prix du projet : Maison avec Terrain

prix 425 750 €

  • 5 pièces
  • 3 chambres
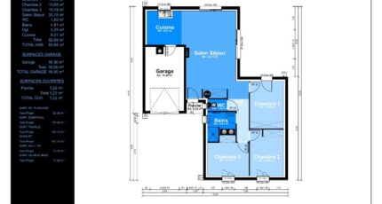
  • Surface maison 82 m2

Offre Terrain + Maison - Aytré (17440)
Prix global : 425 750 €
Terrain : 321 m²
Maison : 82 m² + garage 15 m²

Saisissez cette belle opportunité à Aytré : un terrain de 321 m² idéalement situé, associé à un projet de construction signé MAISONS ACCO (groupe Hexaom), constructeur reconnu pour la qualité et la fiabilité de ses réalisations.

Cette maison de 82 m², parfaitement agencée, se compose de :
3 chambres confortables
Une pièce de vie lumineuse ouverte sur le jardin
Une salle de bain fonctionnelle
Un garage de 15 m² attenant

Une conception moderne, économique et personnalisable, pensée pour offrir un confort de vie optimal pour toute la famille.

Pour plus d'informations ou planifier une rencontre : contactez Julie Holdry au O7 77 88 33 95.

Mentions légales

Terrain proposé par un partenaire foncier selon disponibilités et autorisation de publicité au prix de 270 000 €. Hors droit d'enregistrement et frais de notaire. Terrain + Maison proposés au prix de 155 750 € (Hors branchements et raccordements, papiers peints, peintures, revêtement de sol dans les chambres. Tarif modifiable sans préavis). Etiquette énergie : A. Différents modèles disponibles pour ce terrain. Assurances et garanties du constructeur (RC professionnelle, décennale, dommage ouvrage, garantie de remboursement de l'acompte, livraison à prix et délai convenu) : https://www.maisons-acco.com/informations-legales/.

Contactez l'agence de La Jarne

05 46 01 50 50

    * Champs obligatoires

    Vos informations sont traitées par HEXAOM et transmises à un conseiller commercial qui vous contactera afin de répondre à votre demande. Les plans et images présentés sur notre site sont la propriété d’HEXAOM et ne peuvent pas être reproduits sans son accord. Pour retrouver notre politique de protection des données personnelles et exercer vos droits conformément à la « loi informatique et liberté » cliquez-ici.