Maison neuve à
Bouhet (17540) Référence : JH2360641_1

Prix du projet : Maison avec Terrain

prix 198 415 €

  • 3 pièces
  • 2 chambres
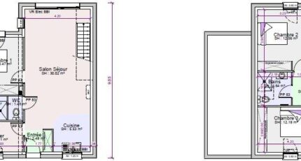
  • Surface maison 91 m2

OFFRE TERRAIN + MAISON - Bouhet (17)
À partir de 198 415 €

Située dans le charmant village de Bouhet, cette offre exceptionnelle comprend :
👉 Un terrain de 189 m² + une maison moderne de 91 m² habitables avec 3 chambres.
🏡 Votre future maison - 91 m² - 3 chambres dont une suite parentale

Cette maison proposée par Maisons ACCO - Groupe Hexaom offre :

Une suite parentale au rez-de-chaussée : chambre + espace salle d'eau + dressing
Une grande pièce de vie lumineuse, idéale pour recevoir
Une cuisine ouverte avec accès direct au cellier
Deux belles chambres à l'étage
Salle d'eau à l'étage + WC

Maison moderne, fonctionnelle et entièrement personnalisable

📍 Le terrain - 189 m² à Bouhet (17)

Un emplacement idéal :
Cadre calme et familial
À proximité de Surgères et La Rochelle
Environnement agréable pour un premier achat ou une résidence principale

Prix global : 198 415 €

(Terrain + maison selon le modèle présenté)

🔑 Construisez votre projet de vie avec Maisons ACCO - Groupe Hexaom
Contactez moi au 07.77.88.33.95 pour plus de renseignements sur ce projet.

Mentions légales

Terrain proposé par un partenaire foncier selon disponibilités et autorisation de publicité au prix de 33 900 €. Hors droit d'enregistrement et frais de notaire. Terrain + Maison proposés au prix de 164 515 € (Hors branchements et raccordements, papiers peints, peintures, revêtement de sol dans les chambres. Tarif modifiable sans préavis). Etiquette énergie : A. Différents modèles disponibles pour ce terrain. Assurances et garanties du constructeur (RC professionnelle, décennale, dommage ouvrage, garantie de remboursement de l'acompte, livraison à prix et délai convenu) : https://www.maisons-acco.com/informations-legales/.

Contactez l'agence de La Jarne

05 46 01 50 50

    * Champs obligatoires

    Vos informations sont traitées par HEXAOM et transmises à un conseiller commercial qui vous contactera afin de répondre à votre demande. Les plans et images présentés sur notre site sont la propriété d’HEXAOM et ne peuvent pas être reproduits sans son accord. Pour retrouver notre politique de protection des données personnelles et exercer vos droits conformément à la « loi informatique et liberté » cliquez-ici.