Maison neuve à
Charron (17230) Référence : JH2353251_2

Prix du projet : Maison avec Terrain

prix 221 400 €

  • 5 pièces
  • 3 chambres
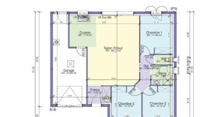
  • Surface maison 80 m2

OFFRE MAISON + TERRAIN - CHARRON
221 400 €

Opportunité idéale pour une jeune famille ou un investissement locatif !
Sur un terrain borné et viabilisé de 344 m², situé au coeur de Charron, réalisez votre projet de construction avec Maisons ACCO - Groupe HEXAOM.

Cette maison fonctionnelle de 80 m² habitables comprend :

🏡 3 chambres
🚗 Un garage attenant
🌞 Un séjour lumineux ouvert sur le jardin
📦 Des espaces optimisés et pratiques au quotidien

Un emplacement privilégié :

École et services à proximité immédiate Commerces, médecins, infrastructures sportives accessibles facilement. À seulement quelques minutes de La Rochelle et des axes principaux
Un cadre de vie pratique et agréable, parfait pour s'installer ou sécuriser un investissement pérenne.

📞 Informations et étude de projet : Julie Holdry - O7 77 88 33 95

Mentions légales

Terrain proposé par un partenaire foncier selon disponibilités et autorisation de publicité au prix de 63 900 €. Hors droit d'enregistrement et frais de notaire. Maison proposée, avec un contrat de construction de maison individuelle, dans le cadre de la loi du 19/12/1990, au prix de 157 500 € (Hors branchements et raccordements, papiers peints, peintures, revêtement de sol dans les chambres, qui sont chiffrés dans les travaux qui restent à charge du client. Tarif modifiable sans préavis). Étiquette énergie : A. Différents modèles disponibles pour ce terrain. Assurances et garanties du constructeur comprises (RC professionnelle, décennale, dommage ouvrage).

Contactez l'agence de La Jarne

05 46 01 50 50

    * Champs obligatoires

    Vos informations sont traitées par HEXAOM et transmises à un conseiller commercial qui vous contactera afin de répondre à votre demande. Les plans et images présentés sur notre site sont la propriété d’HEXAOM et ne peuvent pas être reproduits sans son accord. Pour retrouver notre politique de protection des données personnelles et exercer vos droits conformément à la « loi informatique et liberté » cliquez-ici.