Maison neuve à
Puyravault (17700) Référence : JH2339922_1

Prix du projet : Maison avec Terrain

prix 219 980 €

  • 5 pièces
  • 3 chambres
  • Surface maison 90 m2

OFFRE TERRAIN + MAISON - PUYRAVAULT (17)
Maison 3 chambres + garage Terrain 549 m²
Prix global : 219 900 €

Découvrez cette belle opportunité à Puyravault :
Un terrain de 549 m², borné et viabilisé, idéal pour accueillir votre future maison 3 chambres avec garage, pensée pour offrir confort, fonctionnalité et luminosité.

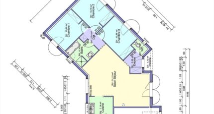
La maison comprend :

Une pièce de vie spacieuse et lumineuse

Trois chambres bien agencées

Salle d'eau moderne

WC séparés

Garage attenant

Plan optimisé pour une vie familiale agréable

Le terrain :

549 m²

Borné et viabilisé

Environnement calme et proche des commodités

Prix de l'ensemble : 219 900 €

(terrain + maison, hors frais annexes)

Contact : Julie Holdry - O7 77 88 33 95

Mentions légales

Terrain proposé par un partenaire foncier selon disponibilités et autorisation de publicité au prix de 55 080 €. Hors droit d'enregistrement et frais de notaire. Maison proposée, avec un contrat de construction de maison individuelle, dans le cadre de la loi du 19/12/1990, au prix de 164 900 € (Hors branchements et raccordements, papiers peints, peintures, revêtement de sol dans les chambres, qui sont chiffrés dans les travaux qui restent à charge du client. Tarif modifiable sans préavis). Étiquette énergie : A. Différents modèles disponibles pour ce terrain. Assurances et garanties du constructeur comprises (RC professionnelle, décennale, dommage ouvrage).

Contactez l'agence de La Jarne

05 46 01 50 50

    * Champs obligatoires

    Vos informations sont traitées par HEXAOM et transmises à un conseiller commercial qui vous contactera afin de répondre à votre demande. Les plans et images présentés sur notre site sont la propriété d’HEXAOM et ne peuvent pas être reproduits sans son accord. Pour retrouver notre politique de protection des données personnelles et exercer vos droits conformément à la « loi informatique et liberté » cliquez-ici.