Maison neuve à
Thairé (17290) Référence : JH2336295_3

Prix du projet : Maison avec Terrain

prix 447 620 €

  • 5 pièces
  • 4 chambres
  • Surface maison 132 m2

TERRAIN + MAISON - THAIRÉ (17290) - 447 620 €

Dans la charmante commune de Thairé (17290), découvrez ce magnifique projet de construction proposé par Maisons ACCO - Groupe HEXAOM.

Le terrain:

Surface : 715 m²

Exposition : plein sud, idéal pour profiter de la luminosité toute la journée

Environnement calme et recherché

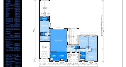
La maison (130 m² habitables)

Une superbe maison moderne et fonctionnelle comprenant :

4 chambres, dont

1 suite parentale avec salle d'eau privative

Spacieuse pièce de vie ouverte, baignée de lumière

Terrasse couverte parfaite pour les beaux jours

Préau

Garage intégré

Cellier attenant pour plus de praticité

Conception pensée et optimisée par Maisons ACCO - groupe HEXAOM, gage de qualité et de maîtrise.

Prix global : 447 620 €

Pour plus d'informations ou une étude personnalisée de votre projet :
Julie HOLDRY - O7 77 88 33 95

Mentions légales

Terrain proposé par un partenaire foncier selon disponibilités et autorisation de publicité au prix de 115 000 €. Hors droit d'enregistrement et frais de notaire. Maison proposée, avec un contrat de construction de maison individuelle, dans le cadre de la loi du 19/12/1990, au prix de 332 620 € (Hors branchements et raccordements, papiers peints, peintures, revêtement de sol dans les chambres, qui sont chiffrés dans les travaux qui restent à charge du client. Tarif modifiable sans préavis). Étiquette énergie : A. Différents modèles disponibles pour ce terrain. Assurances et garanties du constructeur comprises (RC professionnelle, décennale, dommage ouvrage).

Contactez l'agence de La Jarne

05 46 01 50 50

    * Champs obligatoires

    Vos informations sont traitées par HEXAOM et transmises à un conseiller commercial qui vous contactera afin de répondre à votre demande. Les plans et images présentés sur notre site sont la propriété d’HEXAOM et ne peuvent pas être reproduits sans son accord. Pour retrouver notre politique de protection des données personnelles et exercer vos droits conformément à la « loi informatique et liberté » cliquez-ici.