Maison neuve à
Villedoux (17230) Référence : JH2290765_2

Prix du projet : Maison avec Terrain

prix 398 165 €

  • 5 pièces
  • 4 chambres
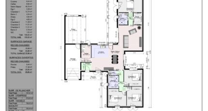
  • Surface maison 133 m2

Votre maison neuve 4 chambres avec suite parentale à partir de 398 165 € - par Maisons ACCO (Groupe Hexaôm). Laissez-vous séduire par cette magnifique maison neuve à construire, pensée pour allier confort, luminosité et modernité. Projet situé à Villedoux.
Superficie optimisée avec de beaux volumes, 4 chambres, dont 1 suite parentale avec salle d'eau privative.
Grande pièce de vie ouverte sur un patio lumineux, Cuisine ouverte sur le séjour, Terrasse couverte, idéale pour vos repas d'été. Garage intégré et porche d'entrée élégant
Prix global : 398 165 € (maison + terrain)
Prix hors frais de notaire et selon disponibilité du terrain.

Maisons ACCO, constructeur du Groupe Hexaôm, vous accompagne dans la réalisation complète de votre projet, du financement à la remise des clés. Profitez de la sécurité et du savoir-faire d'un acteur national reconnu depuis plus de 100 ans. Contactez-moi au 07.77.88.33.95 pour découvrir ce projet et personnaliser votre future maison selon vos envies !

Mentions légales

Terrain proposé par un partenaire foncier selon disponibilités et autorisation de publicité au prix de 115 115 €. Hors droit d'enregistrement et frais de notaire. Maison proposée, avec un contrat de construction de maison individuelle, dans le cadre de la loi du 19/12/1990, au prix de 283 050 € (Hors branchements et raccordements, papiers peints, peintures, revêtement de sol dans les chambres, qui sont chiffrés dans les travaux qui restent à charge du client. Tarif modifiable sans préavis). Étiquette énergie : A. Différents modèles disponibles pour ce terrain. Assurances et garanties du constructeur comprises (RC professionnelle, décennale, dommage ouvrage).

Contactez l'agence de La Jarne

05 46 01 50 50

    * Champs obligatoires

    Vos informations sont traitées par HEXAOM et transmises à un conseiller commercial qui vous contactera afin de répondre à votre demande. Les plans et images présentés sur notre site sont la propriété d’HEXAOM et ne peuvent pas être reproduits sans son accord. Pour retrouver notre politique de protection des données personnelles et exercer vos droits conformément à la « loi informatique et liberté » cliquez-ici.