Maison neuve à
Villedoux (17230) Référence : RB2389160_2

Prix du projet : Maison avec Terrain

prix 245 000 €

  • 3 pièces
  • 2 chambres
  • Surface maison 70 m2

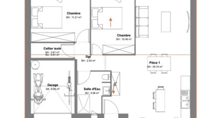
A Vendre à Villedoux, sur un terrain de 282m2 , une construction de 2 chambres, une belle salle de bain, un garage et une très agréable pièce de vie avec chauffage par climatisation.
Comprenant, un vide sanitaire, tous les revêtements de sols, sanitaires complets et les peintures .

Toutes assurances , frais de notaire et raccordements inclus pour 245000€

Contactez Romuald Bruneau -O6 63 80 67 27 - MAISON ACCO

Mentions légales

Terrain proposé par un partenaire foncier selon disponibilités et autorisation de publicité au prix de 83 000 €. Hors droit d'enregistrement et frais de notaire. Terrain + Maison proposés au prix de 245 000 € (Hors branchements et raccordements, papiers peints, peintures, revêtement de sol dans les chambres. Tarif modifiable sans préavis). Etiquette énergie : A. Différents modèles disponibles pour ce terrain. Assurances et garanties du constructeur (RC professionnelle, décennale, dommage ouvrage, garantie de remboursement de l'acompte, livraison à prix et délai convenu) : https://www.maisons-acco.com/informations-legales/.

Contactez l'agence de La Jarne

05 46 01 50 50

    * Champs obligatoires

    Vos informations sont traitées par HEXAOM et transmises à un conseiller commercial qui vous contactera afin de répondre à votre demande. Les plans et images présentés sur notre site sont la propriété d’HEXAOM et ne peuvent pas être reproduits sans son accord. Pour retrouver notre politique de protection des données personnelles et exercer vos droits conformément à la « loi informatique et liberté » cliquez-ici.