Maison neuve à
Vouhé (17700) Référence : JH2295175_2

Prix du projet : Maison avec Terrain

prix 226 120 €

  • 4 pièces
  • 3 chambres
  • Surface maison 96 m2

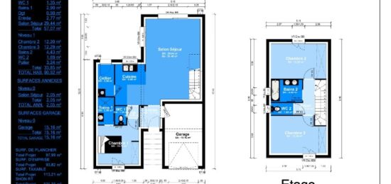
VENTE d'une maison 96 m² + garage à Vouhé
MAISON NEUVE re2020
À 31 km de la côte atlantique et à deux pas de La Rochelle, à vendre bénéficiant d'un emplacement d'exception dans Vouhé (17700), laissez vous charmer par cette maison de 4 pièces de plain-pied de 96 m². Elle dispose de trois chambres, d'une pièce de vie sapcieuse et d'un garage.
Le terrain du bien s'étend sur 352 m².
Cette propriété se situe dans un quartier attractif. L'École Élémentaire Vouhé est implantée à moins de 10 minutes à pied. Côté transports en commun, il y a la gare Surgères à moins de 10 minutes en voiture. La nationale N11 est accessible à 8 km.
Elle est proposée à l'achat pour 226 120 €.
N'hésitez pas à prendre contact avec notre agence (HOLDRY Julie : 07-77-88-33-95) pour toute information sur la maison, sur les démarches à suivre ou sur les modalités de vente. Donnez vie à vos projets immobiliers avec Maisons Acco La Jarne.

Mentions légales

Terrain proposé par un partenaire foncier selon disponibilités et autorisation de publicité au prix de 48 928 €. Hors droit d'enregistrement et frais de notaire. Maison proposée, avec un contrat de construction de maison individuelle, dans le cadre de la loi du 19/12/1990, au prix de 177 192 € (Hors branchements et raccordements, papiers peints, peintures, revêtement de sol dans les chambres, qui sont chiffrés dans les travaux qui restent à charge du client. Tarif modifiable sans préavis). Étiquette énergie : A. Différents modèles disponibles pour ce terrain. Assurances et garanties du constructeur comprises (RC professionnelle, décennale, dommage ouvrage).

Contactez l'agence de La Jarne

05 46 01 50 50

    * Champs obligatoires

    Vos informations sont traitées par HEXAOM et transmises à un conseiller commercial qui vous contactera afin de répondre à votre demande. Les plans et images présentés sur notre site sont la propriété d’HEXAOM et ne peuvent pas être reproduits sans son accord. Pour retrouver notre politique de protection des données personnelles et exercer vos droits conformément à la « loi informatique et liberté » cliquez-ici.