Maison neuve à
Vouhé (17700) Référence : RB2382983_2

Prix du projet : Maison avec Terrain

prix 165 000 €

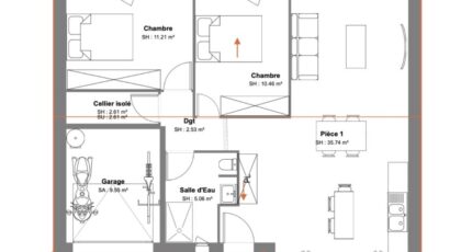
  • 3 pièces
  • 2 chambres
  • Surface maison 70 m2

A vendre à Vouhé , cette construction de 2 chambres, d'une salle de bain confortable, un garage et une belle pièce de vie, travaux de peintures et revêtements des sols à prévoir.

Toutes Assurances, frais de notaire et raccordements inclus pour 165000€

Contactez Romuald Bruneau O6 63 80 67 27 - MAISON ACCO

Mentions légales

Terrain proposé par un partenaire foncier selon disponibilités et autorisation de publicité au prix de 45 870 €. Hors droit d'enregistrement et frais de notaire. Terrain + Maison proposés au prix de 165 000 € (Hors branchements et raccordements, papiers peints, peintures, revêtement de sol dans les chambres. Tarif modifiable sans préavis). Etiquette énergie : A. Différents modèles disponibles pour ce terrain. Assurances et garanties du constructeur (RC professionnelle, décennale, dommage ouvrage, garantie de remboursement de l'acompte, livraison à prix et délai convenu) : https://www.maisons-acco.com/informations-legales/.

Contactez l'agence de La Jarne

05 46 01 50 50

    * Champs obligatoires

    Vos informations sont traitées par HEXAOM et transmises à un conseiller commercial qui vous contactera afin de répondre à votre demande. Les plans et images présentés sur notre site sont la propriété d’HEXAOM et ne peuvent pas être reproduits sans son accord. Pour retrouver notre politique de protection des données personnelles et exercer vos droits conformément à la « loi informatique et liberté » cliquez-ici.