LE FORT ROYER

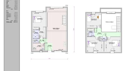
Plan maison 5 pièces 4 chambres Surface maison 120 à 121 m2

Avec ses lignes verticales et son allure affirmée, Le Fort Boyer s'inspire du patrimoine emblématique de la côte rochelaise. Cette maison à étage combine élégance, fonctionnalité et modernité, tout en conservant une sobriété architecturale chère à Maisons ACCO. Un modèle urbain, lumineux et intemporel.

Maison de 120 m² à étage, 4 chambres dont une suite parentale au RDC. Une belle hauteur sous plafond dans le salon - séjour.

Construire ce modèle ?

    * Champs obligatoires

    Vos informations sont traitées par HEXAOM et transmises à un conseiller commercial qui vous contactera afin de répondre à votre demande. Les plans et images présentés sur notre site sont la propriété d’HEXAOM et ne peuvent pas être reproduits sans son accord. Pour retrouver notre politique de protection des données personnelles et exercer vos droits conformément à la « loi informatique et liberté » cliquez-ici.